AMNH Best Practices
Parent article: Production Video
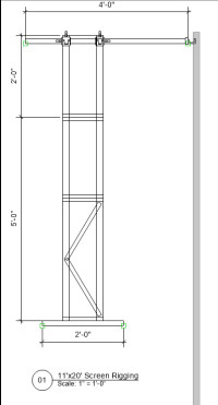
In the Hall of Ocean Life at AMNH, we have three primary features we repeatedly set up. The main screen, the 10' Truss tower, and the Ascender16 at FOH.
Main Screen

Parent article: Production Video
In the Hall of Ocean Life at AMNH, we have three primary features we repeatedly set up. The main screen, the 10' Truss tower, and the Ascender16 at FOH.
